Nuomojamos patalpos tinkančios auto servisui Arimų g.18 Vilnius

VILNIUS, Vilniaus m. sav. 195 peržiūros sau 26, 2026

3,500€ / month Nuomojama

Apžvalga
Last Updated sau 26, 2026
Ko ieškote Patalpos
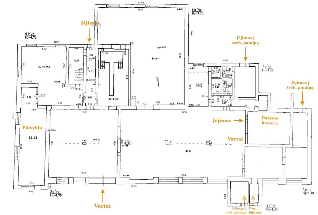
Plotas 838 m²
Kambariai 9
Vonios kambariai 2
Aukštas 1/1
Statybos Metai 2015
Kaina 3,500€ / month
Apibūdinimas
PATALPOS JAU LAISVOS!!!!
Strategiškai patogioje vietoje – Arimų g. Vilniuje, išnuomojamos 838 kv.m. ploto komercinės patalpos, esančios atskirame pastate, turinčios ATSKIRĄ ĮĖJIMĄ su PAKELIAMAIS VARTAIS. 
Puikiai tinka įvairiai veiklai: sandėliavimui, smulkiai gamybai, dirbtuvėms ar administracinei paskirčiai ar automobilių servisui (prieš tai čia buvo automobilių servisas). 
Šiuo metu patalpos laisvos, tad galima įsikraustyti IŠ KARTO!!!!!!
Privalumai: 
Pastato stogas ir sienos yra apšildytos.
Įrengta padavimo-ištraukimo oro sistema.
Įrengta priešgaisrinė ir garsinė signalizacija.
Įrengta katilo programuojama patalpų šildymo automatika.
Išvedžiota apsaugos stebėjimo sistema - filmavimo kameros su įrašančiu įrenginiu!!!!
Įrengta buitinės persirengimo ir virtuvėlės patalpos,dušinė.
Karštas vanduo ruošiamas katilo per boilerį ,elektra-30 kw.
Sklypo plotas 17 arų!!!!!!!!!!!
GALIMYBĖ PRISITAIKYTI PAGAL SAVO VEIKLOS POBŪDĮ!!! 
Įrengtas san. mazgas. 
Patekimas visą parą
Yra elektros įvadai, apšvietimas. 30 kw galingumas.
Patogus susisiekimas tiek automobiliu, tiek viešuoju transportu 
Tinkama įvairiai verslo veiklai 
Strategiškai patogi vieta su lengvu privažiavimu iš pagrindinių gatvių. 
Netoliese yra kitos paslaugos, kas pritraukia papildomą klientų srautą


DĖMĖSIO, JEIGU NUSPRĘSITE NUOMOTIS KAIP SERVISĄ, TAI JUMS PASISEKĖ, NES: veiklą galėsite vykdyti iš karto, nereikės rūpintis įranga ir pan.!!!!!!!!!!!!!
Galėsite užsiimti itin plačią veiklos sferą-einamasis automobilių remontas ir aptarnavimas - stabdžių remontas, ratų montavimas/balansavimas, pakabos patikros stendas/kratytuvas, šviesų reguliavimas, automobilių geometrija (suvedimas), variklių, pavarų dėžių remontas, pakabos, transmisijos remontas.
Taip pat galima atlikti ir automobilio kėbulo atstatymo ir DAŽYMO darbus. Yra DAŽYMO KAMERA, tampimo stendas, dažų parinkimas, oro kompresorius, magistraliniai oro filtrai. 
Įrengta NAFTOS GAUDYKLĖ, gamybinėse erdvėse sumontuoti nubėgimo trapai. 
Galingas sraigtinis Worthington kompresorius su dideliu resyveriu, dažymo kamera šildoma dujiniu atskiru katilu-SIAL Magnum HC 100 su degikliu Bentone BG 300 ir automatika.
Virš stogo yra įrengtas dar vienas toks pat dujinis katilas,nuo kurio galima padaryti karšto oro tiekimą į autoserviso patalpas.
Galima remontuoti ir pakankamai AUKŠTAS transporto priemones-3,7-4 m. 
Antrame aukšte galima vystyti kaip pagalbinę veiklą-automobilio vidaus interjero remonto ar net gyventi.
Geri,draugiški kaimynai. Vieta įdirbta,bus galima savo KLIENTUS atiduoti nuomininkui!!!!!!!!!!!!!!!!!
 
 
NUOMININKAMS NĖRA TARPININKAVIMO MOKESČIO!!!! 
___________________________________________
 Skambinkite kada Jums patogu, nepavykus prisiskambinti, rašykite sms dėl kokio objekto skambinote - perskambinsiu.   

      





Pasidalykite šiuo turtu:

Susisiekite